Однокомнатная квартира 39,00 м2 по ул. проспект Большевиков 9к1 за 7700000 руб.

Однокомнатная квартира по ул. проспект Большевиков, 9к1 в Санкт-Петербурге
Цена 7 700 000 р. (197 436 р./м2)
Подать заявку на ипотеку
Адрес проспект Большевиков, 9к1
Этаж 14/14
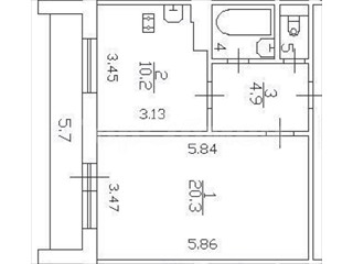
Площадь общая 39 м2, жилая 20,3 м2, кухни 10,2 м2
Кол-во комнат Однокомнатная
Продаётся уютная 1-комнатная квартира 39 м² рядом с метро «Проспект Большевиков»! Светлая и просторная квартира в доме с отличной локацией — всего 7 минут пешком до метро, зелёный двор, спокойные соседи и развитая инфраструктура района. Удобная планировка: большая комната, отдельная кухня, застеклённая лоджия, раздельный санузел, просторная прихожая. Дом кирпичный, тёплый и надёжный, ухоженный подъезд, новые лифты, аккуратная придомовая территория. Всё необходимое — в шаговой доступности: школы, детские сады, поликлиника, торговые центры «Лондон Молл» и «О’КЕЙ», кафе, фитнес-клубы и зоны отдыха. Удобный выезд на КАД и в центр города. ✔ Один взрослый собственник ✔ Без обременений ✔ Прямая продажа Квартира идеально подойдёт для проживания, сдачи в аренду или как надёжная инвестиция — район востребован, ликвидность высокая. Стоимость: 7 899 000 ₽. Возможен разумный торг. Звоните — покажем в удобное время! Квартира действительно заслуживает вашего внимания.
Описание дома
Этажность дома 14
Объявление № 23678961
Дата подачи:
26 ноября 2025 г. 4:07
Дата обновления:
26 ноября 2025 г. 4:07
Просмотров 16 Хотите продать быстрее?

Продавец
Агентство недвижимости:
Мельникова Светлана Леонидовна
Показать номер телефона
Пожаловаться
Комментарии:
Добавить